Ụlọ obibi Co-op
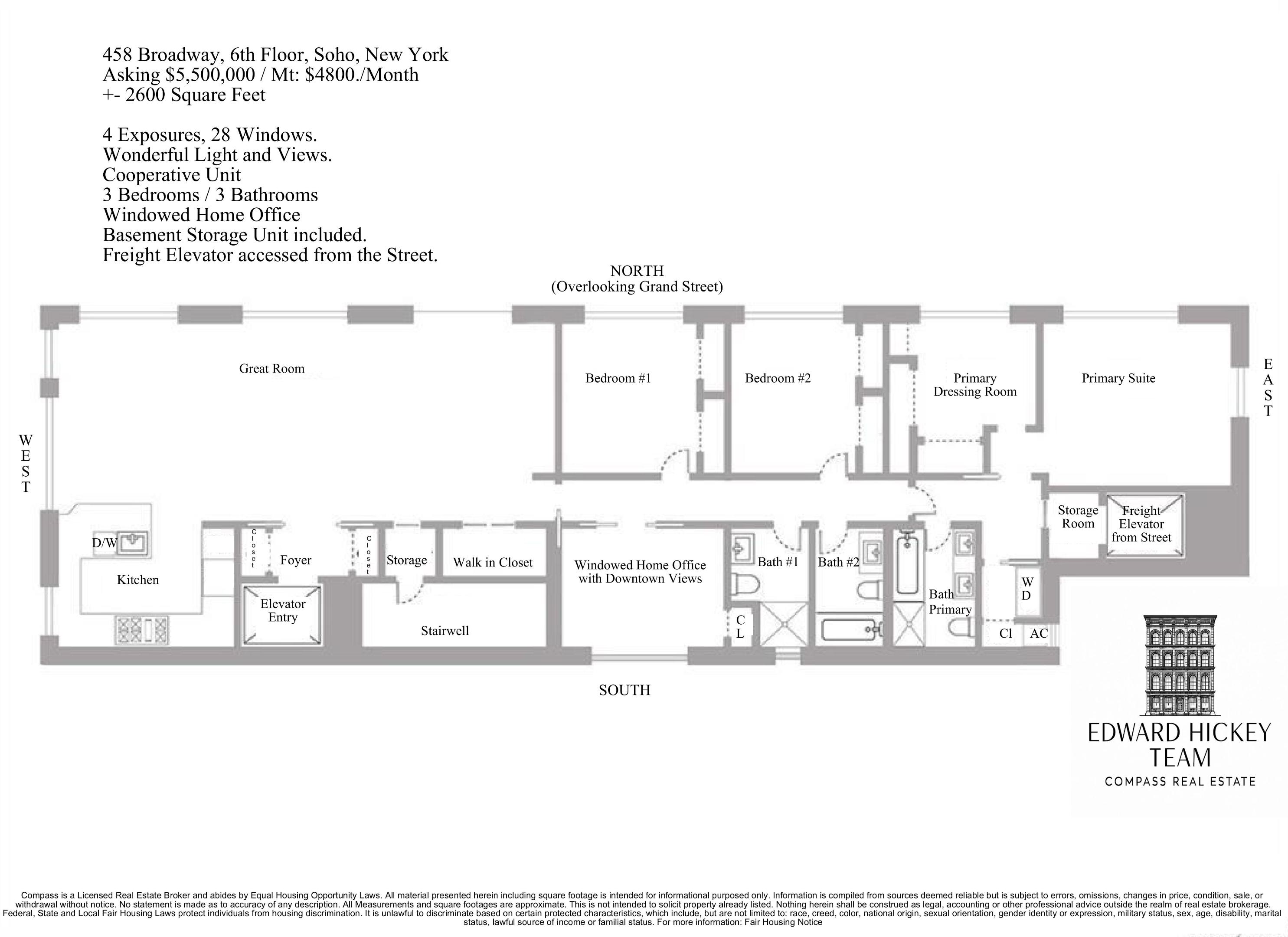
Adreesị: ‎458 Broadway #6
Koodu ZIP: 10013
3 yara ụra, 3 ụlọ ịsa ahụ, 2600ft2
分享到
$5,500,000
ID # RLS20069772
Igbo
Are you the listing agent? Sign up to add your name and cell #
Compass Office: ‍212-913-9058

$5,500,000 - 458 Broadway #6, SoHo, NY 10013|ID # RLS20069772

Property Description « Igbo »

Na-akatọ ndị hụrụ Loft n’anya!

458 Broadway dị na oge nkwụsị nke Grand Street na Southeast. Loft a pụrụ iche ma mesịa gburugburu ya na 4 ngosi, 11' elu, ìhè anyanwụ na-adịrị ụtọ, na ụzọ ọhụụ Soho na Downtown gbara gburugburu bụ nke a na-ere ahịa ugbu a.

Elevator nke nwere igbe igodo na-emeghe ozugbo n’ime ụlọ, na-egosi ime ụlọ obibi kacha ọhụrụ, ebe iri nri, na kichin emepee nke nwere nnukwu ụdị akụkọ na-ejere 28 nnukwu windo. nke na-egosi ngosi dị iche iche si na ntụziaka niile—North, South, East, na West.

Dị na otu n'ime ebe ndị a ma ama nke obodo ahụ, ụlọ a zigara ya n'ozuzu, emeghị ya ka ọ bụrụ ụwa nke ọma nke na-arụ ọrụ nke ọma maka ndụ kwa ụbọchị dị ka ọ na-arụkwa ọrụ maka ịnụ ọkụ n'obi.

N’ime ụlọ ahụ bụ nnukwu kichin nke ndị na-esi nri nwere windo, nke ejiri ngwa dị elu gụnyere igwe ọkụ Wolf nwere ọkụ isii nke nwere griddle, friza Sub-Zero, igwe na-ehicha efu Miele na microwave, sinki abụọ dị Deep, ọnụ ụlọ alụmdi na nwunye na ụlọ iri, na ọtụtụ nchekwa pantry na ụlọ nkwakọba, a niile mechara na ụdị oge a n’oge.

A na-esonye n’ime ebe ndị a na-eme ememe dị nwayọọ n’akụkụ, nke bụ ọgwụgwọ ogologo kwụ ọtọ nke nwere windo nwere echiche nke Freedom Tower, zuru oke maka abalị nkiri, ịgụ akwụkwọ, ma ọ bụ ịrụ ọrụ site n'ụlọ.

Ebe nke ime ụlọ ahụ na-enye ọnụ ụlọ atọ buru ibu nwere ohere igbe ezudobe nke ọma na nke a na-edobe ebe a na-abụghị ahụ nwere ụlọ nyocha atọ.

Suite nke onye isi nọ na nnukwu oghere nke na-enwu na n'ogige ugwu nwere windo asaa, ụlọ a na-eme ihe ọma, ụlọ mmiri a na-emepụta, na ịchọgharị anyanwụ nke siri ike na-eme ka izu ahụ malite nke ọma.

A na-enyere nchekwa ọma n'ofe ụlọ ahụ, na-edebe ụlọ nchekwa nkeonwe ọzọ, nke dị na nke a na-eme ka ọ bụrụ ebe a na-edebe.

Ụlọ na-asa ahịhịa na-enye igwe na-ejide ikuku na ụlọ nchekwa ọzọ. Loft nwere ikuku oyi mpaghara abụọ na usoro Sonos nke ejiri arụ ọrụ maka ndị hụrụ egwu n'anya.

Co-op a na-achịkwa nke ọma na-emezu ọtụtụ mgbanwe, gụnyere ndị na-anụ ụgbọ mmiri ọhụrụ na ndị na-ebupụta (nke abụọ na-emeghe ozugbo n'ime Loft) elu ọhụrụ, na ọrụ Local Law 11 zuru ezu—na-eme ka ụlọ ahụ dị ike ma chekwabara nke ọma ka ọ bụrụ nke mara mma.

Nkwakọba ọnwa bụ nke dị ala nke ukwuu $4,850, nke na-egosi njikwa dị ukwuu na akụ na ụba. Ikike ịghịzi nnwere onwe na iwu ụgwọ na-eme ka uru ogologo oge. A na-enye otu n’ ہفتہ 1% flip tax site n'aka onye zụrụ ya.

A na-agbakwunye ụlọ ọrụ ụlọ ahụ, gụnyere vidiyo intercom, nche vidiyo, elevator nke ndị njem, elevator nke ndị na-ebupụtara, na nchekwa nkeonwe.

ID #‎ RLS20069772
Nkọwa ụlọ3 yara ụra, 3 ụlọ ịsa ahụ, ime ụlọ: 2600 ft2, 242m2
(DOM): 8 days
Afọ owuwu1920
Ụgwọ nlekọta$4,800
Ụgbọ okporo ígwè n'okpuru ala2 nkeji: R, W, 6
3 nkeji: N, Q
4 nkeji: J, Z
5 nkeji: A, C, E
7 nkeji: 1
8 nkeji: B, D, F, M
Are you the listing agent? Sign up to add your name/photo/cell to your flyers. helpdesk@Samaki.com
房屋概況 Property Description « Igbo »« ENGLISH »

Na-akatọ ndị hụrụ Loft n’anya!

458 Broadway dị na oge nkwụsị nke Grand Street na Southeast. Loft a pụrụ iche ma mesịa gburugburu ya na 4 ngosi, 11' elu, ìhè anyanwụ na-adịrị ụtọ, na ụzọ ọhụụ Soho na Downtown gbara gburugburu bụ nke a na-ere ahịa ugbu a.

Elevator nke nwere igbe igodo na-emeghe ozugbo n’ime ụlọ, na-egosi ime ụlọ obibi kacha ọhụrụ, ebe iri nri, na kichin emepee nke nwere nnukwu ụdị akụkọ na-ejere 28 nnukwu windo. nke na-egosi ngosi dị iche iche si na ntụziaka niile—North, South, East, na West.

Dị na otu n'ime ebe ndị a ma ama nke obodo ahụ, ụlọ a zigara ya n'ozuzu, emeghị ya ka ọ bụrụ ụwa nke ọma nke na-arụ ọrụ nke ọma maka ndụ kwa ụbọchị dị ka ọ na-arụkwa ọrụ maka ịnụ ọkụ n'obi.

N’ime ụlọ ahụ bụ nnukwu kichin nke ndị na-esi nri nwere windo, nke ejiri ngwa dị elu gụnyere igwe ọkụ Wolf nwere ọkụ isii nke nwere griddle, friza Sub-Zero, igwe na-ehicha efu Miele na microwave, sinki abụọ dị Deep, ọnụ ụlọ alụmdi na nwunye na ụlọ iri, na ọtụtụ nchekwa pantry na ụlọ nkwakọba, a niile mechara na ụdị oge a n’oge.

A na-esonye n’ime ebe ndị a na-eme ememe dị nwayọọ n’akụkụ, nke bụ ọgwụgwọ ogologo kwụ ọtọ nke nwere windo nwere echiche nke Freedom Tower, zuru oke maka abalị nkiri, ịgụ akwụkwọ, ma ọ bụ ịrụ ọrụ site n'ụlọ.

Ebe nke ime ụlọ ahụ na-enye ọnụ ụlọ atọ buru ibu nwere ohere igbe ezudobe nke ọma na nke a na-edobe ebe a na-abụghị ahụ nwere ụlọ nyocha atọ.

Suite nke onye isi nọ na nnukwu oghere nke na-enwu na n'ogige ugwu nwere windo asaa, ụlọ a na-eme ihe ọma, ụlọ mmiri a na-emepụta, na ịchọgharị anyanwụ nke siri ike na-eme ka izu ahụ malite nke ọma.

A na-enyere nchekwa ọma n'ofe ụlọ ahụ, na-edebe ụlọ nchekwa nkeonwe ọzọ, nke dị na nke a na-eme ka ọ bụrụ ebe a na-edebe.

Ụlọ na-asa ahịhịa na-enye igwe na-ejide ikuku na ụlọ nchekwa ọzọ. Loft nwere ikuku oyi mpaghara abụọ na usoro Sonos nke ejiri arụ ọrụ maka ndị hụrụ egwu n'anya.

Co-op a na-achịkwa nke ọma na-emezu ọtụtụ mgbanwe, gụnyere ndị na-anụ ụgbọ mmiri ọhụrụ na ndị na-ebupụta (nke abụọ na-emeghe ozugbo n'ime Loft) elu ọhụrụ, na ọrụ Local Law 11 zuru ezu—na-eme ka ụlọ ahụ dị ike ma chekwabara nke ọma ka ọ bụrụ nke mara mma.

Nkwakọba ọnwa bụ nke dị ala nke ukwuu $4,850, nke na-egosi njikwa dị ukwuu na akụ na ụba. Ikike ịghịzi nnwere onwe na iwu ụgwọ na-eme ka uru ogologo oge. A na-enye otu n’ ہفتہ 1% flip tax site n'aka onye zụrụ ya.

A na-agbakwunye ụlọ ọrụ ụlọ ahụ, gụnyere vidiyo intercom, nche vidiyo, elevator nke ndị njem, elevator nke ndị na-ebupụtara, na nchekwa nkeonwe.

Read the English version or choose another language

This information is not verified for authenticity or accuracy and is not guaranteed and may not reflect all real estate activity in the market. ©2025 The Real Estate Board of New York, Inc., All rights reserved.

Courtesy of Compass

公司: ‍212-913-9058




分享 Share
$5,500,000
Ụlọ obibi Co-op
ID # RLS20069772
‎458 Broadway
New York City, NY 10013
3 yara ụra, 3 ụlọ ịsa ahụ, 2600ft2


Listing Agent(s):‎
Are you the listing agent?
Sign up to add your name and cell #‎
Office: ‍212-913-9058
请说您在SAMAKI.COM看此广告
请也给我ID # RLS20069772