Ụlọ na-ere
Adreesị: ‎383 W END Avenue
Koodu ZIP: 10024
6 yara ụra, 4 ụlọ ịsa ahụ, 1 ụlọ ịsa ahụ ọkara, 3200ft2
分享到
$5,500,000
ID # RLS20069810
Igbo
Are you the listing agent? Sign up to add your name and cell #
Douglas Elliman Real Estate Office: ‍212-891-7000

$5,500,000 - 383 W END Avenue, Upper West Side, NY 10024|ID # RLS20069810

Property Description « Igbo »

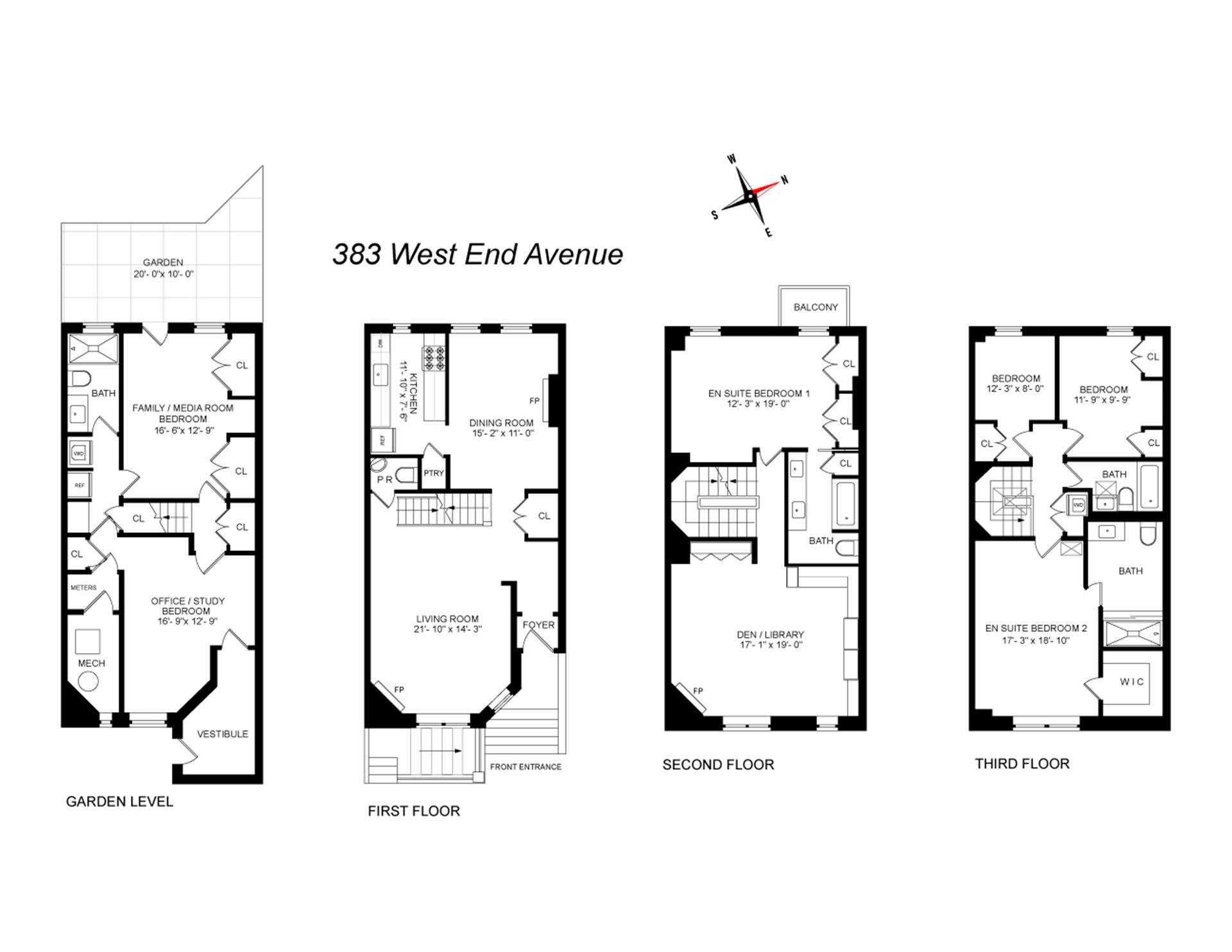
Ụgbọala nke a nwere obosara nke ụkwụ 20 na West End Avenue bụ akụkụ nke mmepe ụlọ asatọ nke Frederick B. White rụpụtara n’afọ 1886. Ụlọ a nke nwere otu ezinụlọ, nke ji brick ọbara dị ọcha na ụdị Flemish Renaissance, agwakọta atụmatụ ọhụrụ. Ọkara nke ọdịdị mbụ nke ime ụlọ 1886 ka anọchiri, gụnyere mpempe atọ nke e kere eke, oghere mmiri agba, na ọkụ na-enwu na-enwu nke na-ejupụta ụlọ a na ìhè ọma. Emebere ya na ụlọ 14, gụnyere Den/Library, ụlọ iri nri nke ọma, ụlọ ụra isii, ụlọ ọgwụ anọ, na ụlọ ọgwụ etiti otu. Ụlọ ahụ ejiri usoro HVAC ọhụrụ, na-enye ikuku oyi na ọkụ n’afọ niile. Ụlọ ọkụ gas nwere ọkụ ọkụ ọhụrụ nke na-arụ ọrụ nke ọma n’ogige niile. Ọtụtụ n’ime windo emechara, nke na-eme ka ụlọ ahụ bụrụ nke dị jụụ. Emechara okpokoro osisi ọhụrụ na mpaghara niile.

Ozugbo ịbanye na ala mbụ, ị ga-ahụ ala marble Mosaic mara mma na foyer. Ụlọ obibi nke a haziri nke ọma nwere elu 11.5 ụkwụ, mmetụta mmiri agba mbụ, na ọkụ. Ụlọ iri nri nke ọma buru ibu nwere ọkụ. Kachasị emelitere ụlọ kichin ndị na-emepụta nri nwere friji Viking, 6 burner Viking range, hood vented na mpụga, sink stainless 36 inches buru ibu, Bosch dishwasher, na countertops nkume. E nwere ọtụtụ nkwakọ na nchekwa na ụlọ nke abụọ nke agba abụọ na nnukwu pantry. Nkụ nke oak ọhịa ọhụrụ dị ụtọ. E nwere ụlọ mmanụ na ala mbụ.

Ala nke abụọ nwere ụlọ ụra en-suite nwere elu dị elu, nnukwu ụlọ nchekwa na ebe nchekwa vanity na nnukwu balcony. Ụlọ mmiri nwere basins nke ya na nke ya na ọkpọ mmiri na-agbanye. Ọ na-anapụkwa nnukwu ụlọ akwụkwọ nke nwere ike ịbụ ụlọ egwu na piano buru ibu, ụlọ ọmụmụ ma ọ bụ ebe nzukọ ezinụlọ. Ụlọ akwụkwọ nwere ụlọ nkwakọ, kọntaktị akwụkwọ, ala osisi herringbone, na ọkụ.

Ala nke atọ nwere skylight buru ibu na elu nke nzọụkwụ ma nwee ụlọ ụra atọ. Nnukwu abụọ bụ nha ọkọlọtọ nwere ebe nchekwa na-eme nke ọma, na-ahụ ụlọ mmiri zuru oke na ọhịa. Otu nnukwu ụlọ ụra en-suite nwere nnukwu ụlọ mmiri na ọkpọ mmiri na-anwụ na akpa. Ụlọ ụra en-suite nwere ihe nkịtị nke na-enye nnukwu ìhè na ihu ụzọ nke ebe a na osisi. E nwere elu dị elu na igwe ikuku na ụlọ ụra niile maka ikuku ndị sitere n’ime. N'ụzọ ala nke atọ nwere nnukwu ụlọ nkwakọ maka nchekwa, nke na-ejikọta maka igwe na igwe. E nwere ohere roof site na ụlọ ụra en-suite maka ogige gị nke a na-ahụ ọkụ.

Ọkwa ogige nwere ụlọ abụọ buru ibu. O nwere ụzọ mbata ya si n’ụzọ. Ọ bụ ihe magburu onwe ya maka ụlọ ụra ọzọ, ọfịs, ebe ezinụlọ ma ọ bụ ụlọ ọzọ. Each nwere tile ala porcelain ọhụrụ na igwe ikuku. Ụlọ laundry nwere igwe LG ọhụrụ na igwe. Friji na shelving na-eme ka mpaghara a zuru oke. Ụlọ mmiri buru ibu nwere ọkpọ mmiri na-anwụ na windo na-ele anya na ogige. Ụlọ ogige ahụ bụ nke mbụ nwere nnukwu aka nke nkume.

Ebe dị na West Side nke ụzọ ahụ, ụlọ ahụ na-ele Anapthorp anya. Ụlọ ahụ na-enweta ụtụ isi ala nke $36,636.56 kwa afọ. Ebe a bụkwa nke dị mfe, naanị blọk ndị dịpụrụ adịpụ site na Zabar's, Citarella na Fairway, nri dị egwu na ụlọ ahịa, ụgbọ oloko ọsọ east-side, na ụzọ Henry Hudson.

ID #‎ RLS20069810
Nkọwa ụlọ6 yara ụra, 4 ụlọ ịsa ahụ, 1 ụlọ ịsa ahụ ọkara, igwe asacha akwa, igwe na-akpụ akwa, ime ụlọ: 3200 ft2, 297m2
(DOM): 0 days
Afọ owuwu1910
Ụtụ isi (kwa afọ)$36,636
Ụgbọ okporo ígwè n'okpuru ala2 nkeji: 1
8 nkeji: 2, 3
Are you the listing agent? Sign up to add your name/photo/cell to your flyers. helpdesk@Samaki.com
房屋概況 Property Description « Igbo »« ENGLISH »

Ụgbọala nke a nwere obosara nke ụkwụ 20 na West End Avenue bụ akụkụ nke mmepe ụlọ asatọ nke Frederick B. White rụpụtara n’afọ 1886. Ụlọ a nke nwere otu ezinụlọ, nke ji brick ọbara dị ọcha na ụdị Flemish Renaissance, agwakọta atụmatụ ọhụrụ. Ọkara nke ọdịdị mbụ nke ime ụlọ 1886 ka anọchiri, gụnyere mpempe atọ nke e kere eke, oghere mmiri agba, na ọkụ na-enwu na-enwu nke na-ejupụta ụlọ a na ìhè ọma. Emebere ya na ụlọ 14, gụnyere Den/Library, ụlọ iri nri nke ọma, ụlọ ụra isii, ụlọ ọgwụ anọ, na ụlọ ọgwụ etiti otu. Ụlọ ahụ ejiri usoro HVAC ọhụrụ, na-enye ikuku oyi na ọkụ n’afọ niile. Ụlọ ọkụ gas nwere ọkụ ọkụ ọhụrụ nke na-arụ ọrụ nke ọma n’ogige niile. Ọtụtụ n’ime windo emechara, nke na-eme ka ụlọ ahụ bụrụ nke dị jụụ. Emechara okpokoro osisi ọhụrụ na mpaghara niile.

Ozugbo ịbanye na ala mbụ, ị ga-ahụ ala marble Mosaic mara mma na foyer. Ụlọ obibi nke a haziri nke ọma nwere elu 11.5 ụkwụ, mmetụta mmiri agba mbụ, na ọkụ. Ụlọ iri nri nke ọma buru ibu nwere ọkụ. Kachasị emelitere ụlọ kichin ndị na-emepụta nri nwere friji Viking, 6 burner Viking range, hood vented na mpụga, sink stainless 36 inches buru ibu, Bosch dishwasher, na countertops nkume. E nwere ọtụtụ nkwakọ na nchekwa na ụlọ nke abụọ nke agba abụọ na nnukwu pantry. Nkụ nke oak ọhịa ọhụrụ dị ụtọ. E nwere ụlọ mmanụ na ala mbụ.

Ala nke abụọ nwere ụlọ ụra en-suite nwere elu dị elu, nnukwu ụlọ nchekwa na ebe nchekwa vanity na nnukwu balcony. Ụlọ mmiri nwere basins nke ya na nke ya na ọkpọ mmiri na-agbanye. Ọ na-anapụkwa nnukwu ụlọ akwụkwọ nke nwere ike ịbụ ụlọ egwu na piano buru ibu, ụlọ ọmụmụ ma ọ bụ ebe nzukọ ezinụlọ. Ụlọ akwụkwọ nwere ụlọ nkwakọ, kọntaktị akwụkwọ, ala osisi herringbone, na ọkụ.

Ala nke atọ nwere skylight buru ibu na elu nke nzọụkwụ ma nwee ụlọ ụra atọ. Nnukwu abụọ bụ nha ọkọlọtọ nwere ebe nchekwa na-eme nke ọma, na-ahụ ụlọ mmiri zuru oke na ọhịa. Otu nnukwu ụlọ ụra en-suite nwere nnukwu ụlọ mmiri na ọkpọ mmiri na-anwụ na akpa. Ụlọ ụra en-suite nwere ihe nkịtị nke na-enye nnukwu ìhè na ihu ụzọ nke ebe a na osisi. E nwere elu dị elu na igwe ikuku na ụlọ ụra niile maka ikuku ndị sitere n’ime. N'ụzọ ala nke atọ nwere nnukwu ụlọ nkwakọ maka nchekwa, nke na-ejikọta maka igwe na igwe. E nwere ohere roof site na ụlọ ụra en-suite maka ogige gị nke a na-ahụ ọkụ.

Ọkwa ogige nwere ụlọ abụọ buru ibu. O nwere ụzọ mbata ya si n’ụzọ. Ọ bụ ihe magburu onwe ya maka ụlọ ụra ọzọ, ọfịs, ebe ezinụlọ ma ọ bụ ụlọ ọzọ. Each nwere tile ala porcelain ọhụrụ na igwe ikuku. Ụlọ laundry nwere igwe LG ọhụrụ na igwe. Friji na shelving na-eme ka mpaghara a zuru oke. Ụlọ mmiri buru ibu nwere ọkpọ mmiri na-anwụ na windo na-ele anya na ogige. Ụlọ ogige ahụ bụ nke mbụ nwere nnukwu aka nke nkume.

Ebe dị na West Side nke ụzọ ahụ, ụlọ ahụ na-ele Anapthorp anya. Ụlọ ahụ na-enweta ụtụ isi ala nke $36,636.56 kwa afọ. Ebe a bụkwa nke dị mfe, naanị blọk ndị dịpụrụ adịpụ site na Zabar's, Citarella na Fairway, nri dị egwu na ụlọ ahịa, ụgbọ oloko ọsọ east-side, na ụzọ Henry Hudson.

Read the English version or choose another language

This information is not verified for authenticity or accuracy and is not guaranteed and may not reflect all real estate activity in the market. ©2025 The Real Estate Board of New York, Inc., All rights reserved.

Courtesy of Douglas Elliman Real Estate

公司: ‍212-891-7000




分享 Share
$5,500,000
Ụlọ na-ere
ID # RLS20069810
‎383 W END Avenue
New York City, NY 10024
6 yara ụra, 4 ụlọ ịsa ahụ, 1 ụlọ ịsa ahụ ọkara, 3200ft2


Listing Agent(s):‎
Are you the listing agent? Sign up to add your name and cell #‎
Office: ‍212-891-7000
请说您在SAMAKI.COM看此广告
请也给我ID # RLS20069810