Ngbazinye
Adreesị: ‎New York City
Koodu ZIP: 10003
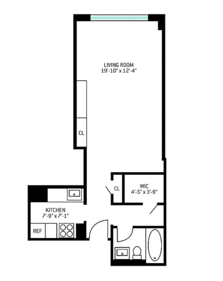
apartmentị stụdio
分享到
$3,695
ID # RLS20069727
Igbo
Are you the listing agent? Sign up to add your name and cell #
Compass Office: ‍212-913-9058

$3,695 - New York City, Flatiron, NY 10003|ID # RLS20069727

Property Description « Igbo »

Udo na Ebe N'etiti Obodo

Dịnụ maka nnyefe na awal ọnwa Abrir. Onye bi na ya. Ndị na-achọghị ka e wee ya na oge ngosi dị iche iche mgbe emere oge mmepe.

Ụlọ mbenata a nwere nnukwu ohere nke ọma a haziri iji mee ka nchekwa na ibi ndụ dịkwuo elu. Ịkwụ ihe eji eme nri nwere nnukwu igwe eji arụ ọrụ ígwè. Ụlọ ịsa ahụ a tụrụ ntọala dị kama kpọmkwem na n'azụ nnukwu igbe nchekwa. Igbe nchekwa abụọ ọzọ na-eme ka ebe nchekwa dịkwuo ukwuu, na desk a haziri nke ọma, na-akpa àgwà maka ọrụ si n'ụlọ.

Ogige obibi na-eme ka ebe obibi, iri nri na akwa dịkhọtara. Ụzọ ndị na-esite na nke ugwu na-enye gburugburu jụụ, udo. Ụkwụ bamboo na ìhè nkịtị a haziri na-eme ka ụlọ a bụrụ ezigbo ụlọ.

Dị n'ụzọ ziri ezi na Union Square, na njikọ nke mpaghara dị iche iche kacha mma, The Victoria bụ ụlọ ọrụ co-op zuru oke. Ụdị ihe eji eme njem na-agụnyere onye na-anaghị akwụ ụgwọ ụbọchị 24, garaji dị n'ụlọ, ọrụ valet na ọrụ ịsa akpụkpọ, na nnukwu ụlọ ịsa akpụkpọ ndị mmadụ. Nwere ike ịnụ ụtọ ọtụtụ ụzọ ụgbọ oloko kachasị eji (4/5/6, N/Q/R, L, F/M) na nganga Union Square Farmers Market, Whole Foods, ịzụ ahịa na ihe oriri dị elu. Mmasị, ụlọ ahụ adịghị ekwe ka ụmụ anụmanụ bịa na ndị na-azụ.

Ego Nkwado Co-op:
Nkwụnye Nwepụta: $500 (Iweghachite)
Ego Nwepụta: $250
Ego Nkwado: $450
Ego Nyocha Kredit & Ndụmọdụ Iwu: $250 kwa Onye Nweta na 18+ Onyebe
Nkwụnye Bịa: $500 (Iweghachite)
Ego Bịa: $250
Ego Nlekota: $350
Ego Nkwado Dijital: $65

ID #‎ RLS20069727
Nkọwa ụlọapartmentị stụdio, garaaji
(DOM): 1 days
Afọ owuwu1965
Ụgbọ okporo ígwè n'okpuru ala3 nkeji: N, Q, R, W, L
4 nkeji: 4, 5, 6
5 nkeji: F, M
8 nkeji: 1, 2, 3
9 nkeji: A, C, E, B, D
Are you the listing agent? Sign up to add your name/photo/cell to your flyers. helpdesk@Samaki.com
房屋概況 Property Description « Igbo »« ENGLISH »

Udo na Ebe N'etiti Obodo

Dịnụ maka nnyefe na awal ọnwa Abrir. Onye bi na ya. Ndị na-achọghị ka e wee ya na oge ngosi dị iche iche mgbe emere oge mmepe.

Ụlọ mbenata a nwere nnukwu ohere nke ọma a haziri iji mee ka nchekwa na ibi ndụ dịkwuo elu. Ịkwụ ihe eji eme nri nwere nnukwu igwe eji arụ ọrụ ígwè. Ụlọ ịsa ahụ a tụrụ ntọala dị kama kpọmkwem na n'azụ nnukwu igbe nchekwa. Igbe nchekwa abụọ ọzọ na-eme ka ebe nchekwa dịkwuo ukwuu, na desk a haziri nke ọma, na-akpa àgwà maka ọrụ si n'ụlọ.

Ogige obibi na-eme ka ebe obibi, iri nri na akwa dịkhọtara. Ụzọ ndị na-esite na nke ugwu na-enye gburugburu jụụ, udo. Ụkwụ bamboo na ìhè nkịtị a haziri na-eme ka ụlọ a bụrụ ezigbo ụlọ.

Dị n'ụzọ ziri ezi na Union Square, na njikọ nke mpaghara dị iche iche kacha mma, The Victoria bụ ụlọ ọrụ co-op zuru oke. Ụdị ihe eji eme njem na-agụnyere onye na-anaghị akwụ ụgwọ ụbọchị 24, garaji dị n'ụlọ, ọrụ valet na ọrụ ịsa akpụkpọ, na nnukwu ụlọ ịsa akpụkpọ ndị mmadụ. Nwere ike ịnụ ụtọ ọtụtụ ụzọ ụgbọ oloko kachasị eji (4/5/6, N/Q/R, L, F/M) na nganga Union Square Farmers Market, Whole Foods, ịzụ ahịa na ihe oriri dị elu. Mmasị, ụlọ ahụ adịghị ekwe ka ụmụ anụmanụ bịa na ndị na-azụ.

Ego Nkwado Co-op:
Nkwụnye Nwepụta: $500 (Iweghachite)
Ego Nwepụta: $250
Ego Nkwado: $450
Ego Nyocha Kredit & Ndụmọdụ Iwu: $250 kwa Onye Nweta na 18+ Onyebe
Nkwụnye Bịa: $500 (Iweghachite)
Ego Bịa: $250
Ego Nlekota: $350
Ego Nkwado Dijital: $65

Read the English version or choose another language

This information is not verified for authenticity or accuracy and is not guaranteed and may not reflect all real estate activity in the market. ©2025 The Real Estate Board of New York, Inc., All rights reserved.

Courtesy of Compass

公司: ‍212-913-9058



分享 Share
$3,695
Ngbazinye
ID # RLS20069727
‎New York City
New York City, NY 10003
apartmentị stụdio


Listing Agent(s):‎
Are you the listing agent?
Sign up to add your name and cell #‎
Office: ‍212-913-9058
请说您在SAMAKI.COM看此广告
请也给我ID # RLS20069727